关于CAD快速看图转换t3格式的操作教程方法。

今天东方狮教程小编给大家讲解CAD快速看图转换t3格式的操作教程,有需要或者有兴趣的朋友们可以看一看下文,希望可以帮到有需要的人。

CAD快速看图转换t3格式的操作教程

CAD快速看图转换t3格式的操作教程

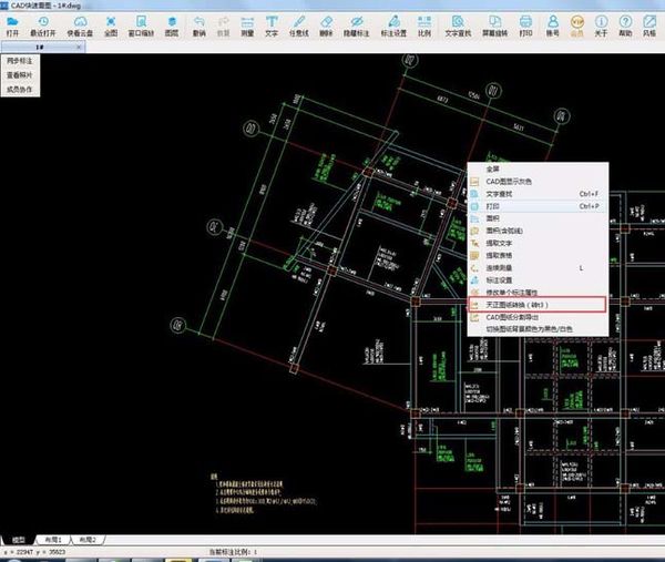
我们需要先用CAD快速看图打开需要转t3的图纸。点击VIP按钮中的“天正图纸转换(转t3)”按钮。或者直接在图纸上点右键出现菜单,选择转t3。

CAD快速看图转换t3格式的操作教程

CAD快速看图转换t3格式的操作教程

然后我们点击之后,出现对话框,选择转换t3后的保存位置、名字、版本,点击保存。

CAD快速看图转换t3格式的操作教程

这个时候经过几秒,提示转换成功。

CAD快速看图转换t3格式的操作教程

最后一步我们在保存的位置就可以找到转后的图纸了

按上文讲述的CAD快速看图转换t3格式的详细过程介绍,伙伴们自己也赶紧去试试吧!