迅捷CAD编辑器是一款集合了查看、编辑CAD图纸功能于一体的实用工具,它还可以将DWG等格式图纸文件打印出来,方便我们随时随地进行查看。那么,我们如何在编辑好文件后将其打印出来呢?下面是迅捷CAD编辑器打印文件的具体方法教程。
迅捷CAD编辑器怎么打印出文件?
1、先在电脑上安装好迅捷CAD编辑器,双击运行软件如图。

2、接下来,我们在软件上打开文件,在“编辑器”菜单中,借助工具对文件进行编辑、修改。

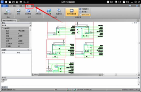
3、当我们完成文档编辑后,我们便可以将文档打印出来了。点击软件菜单栏上的“输出”。

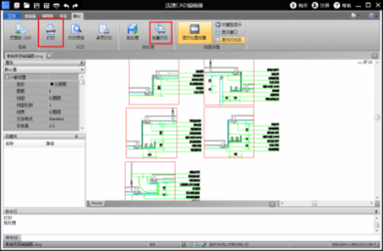
4、这时候我们可以看到多种文件打印方式,一般情况下,我们可以先点击“打印预览”,查看一下文档打印后的显示。

5、接下来单击“打印”,将设置好的文件打印出来即可。要是需要批量打印文件,也可以点击“批量打印”按钮。

通过以上几步骤,我们就可以将编辑好的CAD文件打印出来,方便我们进行查看。
以上就是迅捷CAD编辑器打印文件的方法教程,了解更多精彩教程资讯,请关注wmzhe.com。