cad是一款好用的计算机辅助软件,在autocad2010中怎么标注尺寸呢?今日为你们带来的文章是关于autocad2010标注尺寸的方法,还有不清楚小伙伴和东方狮教程小编一起去学习一下吧。
autocad2010怎么标注尺寸?autocad2010标注尺寸的方法

首先,打开我们要进行尺寸标注的数据.

第二步,选择菜单栏中的标注选项,选择线性标注.

第三步,在图中找到我们要进行尺寸标注的线条.

第四步,选择线条后将尺寸拖出图面,如图示.

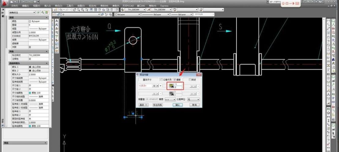
第五步,点击右键,在弹出的对话框中输入我们的公差值.

最后一步,点击确定,完成我们的标注.

以上就是东方狮教程小编带来autocad2010标注尺寸的方法,谢谢大家的阅读观看,希望本文内容能帮助到大家!