很多朋友都还不了解迅捷CAD编辑器打印出文件的相关操作,下面就讲解迅捷CAD编辑器打印出文件的图文操作方法,希望对你们有所帮助哦。
迅捷CAD编辑器打印出文件的图文操作

1、先在电脑上安装好迅捷CAD编辑器,双击运行软件如图。

2、接下来,我们在软件上打开文件,在“编辑器”菜单中,借助工具对文件进行编辑、修改。

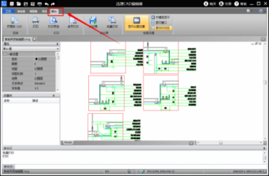
3、当我们完成文档编辑后,我们便可以将文档打印出来了。点击软件菜单栏上的“输出”。

4、这时候我们可以看到多种文件打印方式,一般情况下,我们可以先点击“打印预览”,查看一下文档打印后的显示。

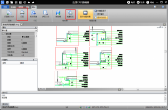
5、接下来单击“打印”,将设置好的文件打印出来即可。要是需要批量打印文件,也可以点击“批量打印”按钮。

以上这里为各位分享了迅捷CAD编辑器打印出文件的图文操作。有需要的朋友赶快来看看本篇文章吧。